Бытовка 5×3

Компактность, функциональность и прочность!

Бытовка 5×3

Бытовка 5х3 – легко транспортируется, быстро устанавливается и не требует сложного обслуживания. Благодаря универсальности и доступной цене, металлическая бытовка 5х3 – это отличное решение для бизнеса, строительства, дачи и промышленности.

Мы предлагаем стандартные варианты и индивидуальные проекты с учетом ваших требований!
Доступные модификации бытовки 5×3 м:
Бытовка с санузлом
Офис-бытовка
Охранный пост
Жилая бытовка
Складская бытовка
Быстрая доставка в любой город Казахстана
Большой выбор планировок и размеров
Свяжитесь с нами, и мы поможем подобрать бытовку, идеально подходящую для вас!
Бытовка 5×3 – легко транспортируется, быстро устанавливается!
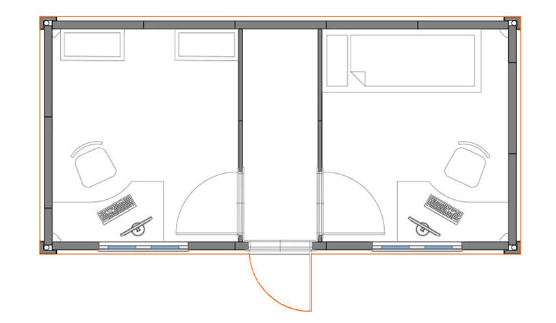
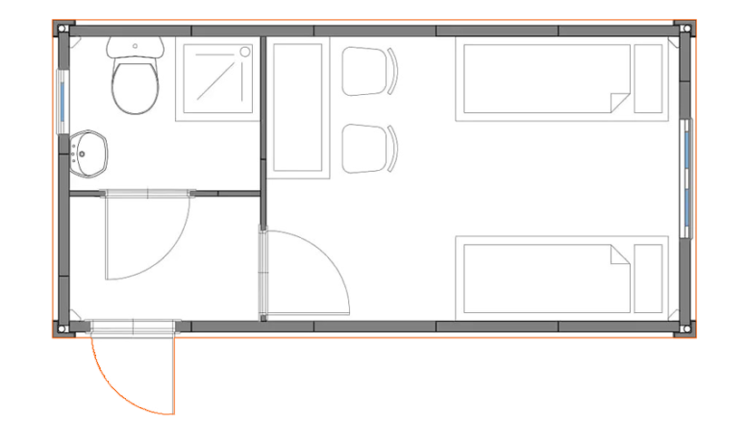
Планировки
Планировки бытовок 5×3 могут быть как стандартными, так и разработанными по индивидуальному проекту с учетом ваших требований и пожеланий.
Наши работы
Мы изготавливаем бытовки 5×3 м на собственном производстве и доставляем их в кратчайшие сроки.
Бытовка 5×3 это многофункциональное помещение, которое легко адаптируется под любые нужды. Благодаря прочной металлической конструкции и качественным материалам, она устойчива к внешним воздействиям и может эксплуатироваться в любых климатических условиях.

Бытовка 5×3 - это современное, мобильное и универсальное помещение, которое легко адаптируется под любые потребности. Её можно легко перемещать с одного объекта на другой, что особенно удобно для строительных компаний и предприятий, работающих в разных локациях.

Почему стоит заказать бытовку 5×3?

Быстрая установка – поставляется в полностью готовом к эксплуатации виде.
Индивидуальная планировка – перегородки, дополнительные окна, двери, подсобные помещения.
Прочность и долговечность – долговечность конструкции делает её выгодным вложением для бизнеса.
Разнообразие отделки – возможность выбора материалов для внутреннего и внешнего оформления.
Электрификация и сантехника – бытовка может быть оснащена полноценной системой освещения, розетками, а также туалетом и душем.

Бытовка 5×3 под ключ

- это практичность, надёжность и комфорт в одном решении!
Купить бытовку 5×3 можно оставив заявку на сайте. Модульные мобильные здания от компании «Pride Invest» изготовлены в соответствии со всеми стандартами качества. Наша продукция сертифицирована, что подтверждает высокий уровень производства и надежность бытовок 5×3.

бытовки алматы

купить бытовку алматы

бытовка алматы

строительные бытовки алматы

строительная бытовка алматы

бытовки Алматы цена

бытовка под ключ алматы

бытовки под ключ алматы

бытовки

бытовка

Made on
Tilda